СТРОИМ
ПРОЕКТИРУЕМ
СТРОИТЕЛЬНАЯ КОМПАНИЯ
Строим каркасные дома
в Псковской обл. от 1.000.000₽ под ключ
с бесплатным замером и 3D проектом дома
Все материалы и технологии соответствуют СП-31-105-2002
Есть экскурсии на готовые дома
Строим в любое время года
Фиксируем цену и сроки в договоре
На рынке с 2013 г. Построили более 200 домов. Собственные бригады. Делаем в срок и даём гарантию 2 года
РАССЧИТАТЬ СТОИМОСТЬ СТРОИТЕЛЬСТВА ДОМА
ПЕРЕЗВОНИТЕ МНЕ
За 9 лет опыта мы довели нашу технологию каркасного строительства до идеала и выкладываемся на каждом из 10 этапов
благодаря этому в вашем доме будет комфортно в любое время года, и он простоит не один десяток лет
Поиск участка
Анализ грунта
Проектирование
Фундамент
Возведение дома
Утепление
Инженерные коммуникации
Отделка
Интерьер
Сдача и заселение
Подберем участок исходя из ваших пожеланий и поможем с оформлением документов
У нас свой специалист по подбору земли, который знает все подводные камни в этой области.
Возьмем на себя оформление пакета необходимых документов.
Вы получаете земельный участок с учетом ваших пожеланий.
Вы будете защищены от ошибок 90% людей, из-за которых дом становится непригодным после первого года проживания
Вы экономите время на сборе документов
В результате
ПОДОБРАТЬ ИДЕАЛЬНЫЙ УЧАСТОК
Проведем геологическую разведку, в рамках которой мы:
- осмотрим участок
- замерим перепад грунта
- исследуем тип грунта для выбора подходящего вида фундамента
Подберем подходящий вид фундамента
Составим план-схему привязки строения к участку и инженерных коммуникаций (водоснабжение, водоотведение, газификация, электроснабжение)
Предотвратим осадку фундамента и разрушение дома в будущем, за счет чего сэкономим вам до 2 000 000 руб.
В результате
ПОЛУЧИТЬ ГЕОЛОГИЧЕСКУЮ РАЗВЕДКУ
Профессионально разработаем проект исходя из ваших пожеланий и особенностей грунта и ландшафта
Визуализация и планировка бесплатно
Вы получите
- развернутый эскиз вашего будущего дома
- детальную 3D-визуализацию с видами
Составим смету с точностью до рубля и зафиксируем стоимость
Установим финальную стоимость проекта, которая после заключения договора уже не изменится. Финальная стоимость отличается от предварительного расчета максимум на 10%
В результате
ПОЛУЧИТЬ ПРОЕКТ ДОМА БЕСПЛАТНО
Возводим фундамент в соответствии с правилами СНиП
Учитываем все нюансы и особенности в технологии установки для каждого вида фундамента
Вы уверены в прочности фундамента
В результате
Заложена надежная основа будущего дома
Возводим каркас дома, кладем полы и кровлю по технологии, превосходящей СП 31-105-2002
— Используем пиломатериал по ГОСТу 8486-86 с идеально правильной геометрией. Работаем только с пиломатериалом камерной сушки.
Вы получите надежный, жесткий и прочный конструктив дома
В результате
— Собираем обвязку свай из пакета досок, а не из бруса, для обеспечения дополнительной прочности.
— Монтируем лаги пола, соблюдая такие пролеты, при которых достигается максимальная устойчивость перекрытий
— Монтируем стены, врезая ригеля и укосины, обшиваем дома плитной обшивкой осп, что гарантирует максимальную пространственную жесткость конструкциям.
— Монтируем каркас на гвозди, толщина и длина которых превышает требования СП
Ставим экологически чистый утеплитель
— Устанавливаем плотный базальтовый плитный утеплитель в распор, без щелей, что гарантирует максимальный комфорт температуры пола в доме.
В вашем доме будет комфортно и безопасно жить.
В результате
— Рассчитываем пирог стен и перекрытий дома с учетом паропропускной способности материалов, для того чтобы пирог конструкций максимально долговечно и правильно работал.
— Проклеиваем пароизоляцию в наших домах, что гарантирует что дом будет теплым, и в стенах не будет в течение отопительного сезона накапливаться влага.
— Все стыки досок выполняем через джут, что гарантирует плотность утепления, отсутствие щелей и соотвественно каких либо мостиков холода.
Прокладываем качественные коммуникации
— Пожарная безопасность прежде всего — используем СТРОГО ГОСТовский кабель, сечением больше, чем выдерживает автомат.
Вы получаете безопасной от пожаров дом
В результате
— Спаиваем все скрутки и соединения кабеля.
— Рассчитываем нагрузку на каждую линию.
— Кабель монтируется в специальной НГ гофре.
Делаем предчистовую и чистовую отделку
— Используем экологически чистые и качественные материалы
Ваш дом полностью готов к созданию уютного интерьера.
В результате
Создаем в вашем доме уютную атмосферу с помощью интерьера
— Дизайнер разработает для вас индивидуальный проект интерьера и учтет все пожелания.
Ваш дом полностью готов для проживания.
В результате
—Поможем сэкономить до 10% на покупке мебели за счет сотрудничества с производителями напрямую.
— С каждым из производителей работаем не менее 3 лет, поэтому уверены в качестве мебели.
Дом полностью готов к заселению
— Вывезем весь строительный мусор и остатки материалов.
Теперь у вас есть собственный дом, о котором вы мечтали. Мы рады, что вы доверились нам и поэтому дарим вам скидку 3% на сервисное обслуживание.
В результате
— Вам остается только провести финальный осмотр и заселиться. С этого момента для вас действует гарантия 5 лет.
РАССЧИТАТЬ СТОИМОСТЬ СТРОИТЕЛЬСТВА ДОМА
Вы будете спокойны за ход строительства, так как сможете контролировать процесс удаленно
Круглосуточное видео-наблюдение на объекте
Вы можете в любой момент все время строительства нам писать и звонить
Ежедневные фото и видеоотчеты от нас в WhatsApp по запросу
Мы позвоним вам только в случае крайней необходимости или чтобы пригласить на приемку работ.
Весь процесс построен так, чтобы вы не тратили время и нервы на постоянный контроль.
Ответьте на 8 вопросов ниже и узнайте предварительную смету под ваш бюджет и параметры
Если сомневаетесь, оставьте поле пустым
Введите номер телефона, чтобы мы могли сообщить вами стоимость дома по вашим параметрам
Сколько этажей будет в вашем доме?
Укажите желаемую площадь дома
Какой фундамент планируете?
Выберите тип кровли
В какой бюджет вы хотели бы уложиться при выполнении всех циклов работ по строительству вашего дома под ключ?
Когда хотите начать строить себе дом? (мы строим в любое время года)
Фиксируем гарантии и обязательства в договоре
Гарантия фиксированной цены
После того, как договор подписан, цена фиксируется. Бывают случаи когда мы строили дешевле обещанной сметы, но никогда не выходили за смету указанную в договоре.
Берем на себя ответственность, которую не могут позволить себе 80% строительных компаний
Гарантия 70 лет на свайно-винтовой фундамент
Сваи сделаны из нержавеющего состава. Мы уверены, что они прослужат не менее 70 лет, поэтому даём такую гарантию.
01
02
03
Гарантируем, что в течение 2 лет вашему дому не потребуется ремонт
Если что-то выйдет из строя, мы приедем и устраним неисправность бесплатно в течение 72 часов.
Построим ваш дом так, как строили бы для себя
Я директор компании СтройЛидер53.

СтройЛидер53 начался с того, что первый каркасный дом я построил лично себе и до сих пор живу в нем, все ошибки и опыт я совершил именно на себе, чтобы для заказчиков сделать все максимально качественно и с учетом личного опыта эксплуатации каркасного дома.

За основу было взято правило: строить так, чтобы в доме было уютно и комфортно жить в любое время года. Строить так, чтобы дом прослужил не один десяток лет. Строить так, как для себя.
Здравствуйте! Меня зовут Александр
Вы можете лично поговорить
с Александром и задать ему вопрос:
ЗАДАТЬ ВОПРОС АЛЕКСАНДРУ
Получите ипотеку по выгодной ставке от 5,1% в одном из наших банков-партнеров
100% одобрение заявки в течение недели
Подготовим все документы и подадим заявку в 1 или несколько банков-партнеров.
Возможно оформление в зачет вторичного жилья
Наш юрист сопровождает вас на всех этапах сделки, готовит все необходимые документы.
Мария Витальевна
Специалист по ипотеке
в СтройЛидер53
ПОЛУЧИТЬ КОНСУЛЬТАЦИЮ ПО ИПОТЕКЕ
Вы получите полностью готовый для жизни дом. Останется только собрать чемоданы и заселиться
Помогаем с оформлением документов на всех этапах: от выбора участка до сдачи в эксплуатацию гос. органам
Подберем материалы под ваш бюджет. Цены до 20% ниже рынка за счёт собственного производства пиломатериалов
С момента заключения договора все вопросы мы берем на себя
Проведем все необходимые инженерные системы и даже подключим Интернет и ТВ
ГОСТ 8486-86
Вы можете выбрать один из готовых проектов, разработанных профессиональным архитектором
Мы уже строили дома по этим проектам, поэтому гарантируем, что эти конструкции можно реализовать и в них будет комфортно жить
ПОДРОБНЕЕ О ДОМЕ
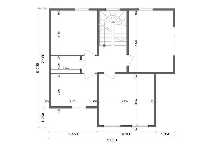
Площадь: 141 м2
Этажность: 2 этажа
Стоимость: от 930.000 руб.
Дом с 2 С/У и 4 спальнями, который пользуется популярностью среди наших клиентов.
Проект 1
Проект 2
Площадь: 119м2
Этажность: 2 этажа
Стоимость: от 1.175.000 руб.
Классический каркасный дом, в котором легко разместятся ваши гости, ведь в нем расположено целых 5 спален
ПОДРОБНЕЕ О ДОМЕ
Проект 3
ПОДРОБНЕЕ О ДОМЕ
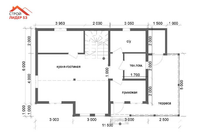
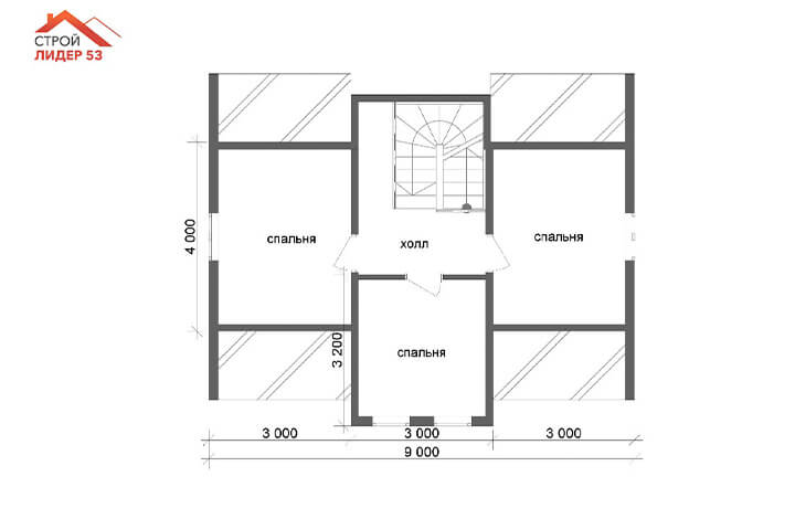
Площадь: 116 м2
Этажность: 2 этажа
Стоимость: от 870.000 руб.
Дом с большой террасой и балконом. 4 спальни и 2 С/У
Вишневый
Проект 4
Небольшой дом с просторной кухней-гостиной и небольшой террасой, но имеющий целых 5 спален.
Площадь: 86 м2
Этажность: 2 этажа
Стоимость: от 975.000 руб.
ПОДРОБНЕЕ О ДОМЕ
ПОДРОБНЕЕ О ДОМЕ
Уютный дом с 5 спальнями. Спальни можно переоборудовать под личный кабинет
Площадь: 110 м2
Этажность: 2 этажа
Стоимость: от 780.000 руб.
Проект 5
Вишневый
Классический каркасный дом. Уютный и имеет 4 просторные спальни, а также большую кухню-гостиную
Площадь: 98 м2
Этажность: 2 этажа
Стоимость: от 810.000 руб.
ПОДРОБНЕЕ О ДОМЕ
Проект 6
Проект 1
ПОЛУЧИТЬ КОНСУЛЬТАЦИЮ
НАПИСАТЬ В WHATSAPP
СКАЧАТЬ КОМПЛЕКТАЦИЮ ПРОЕКТА
Проект 2
ПОЛУЧИТЬ КОНСУЛЬТАЦИЮ
НАПИСАТЬ В WHATSAPP
СКАЧАТЬ КОМПЛЕКТАЦИЮ ПРОЕКТА
Проект 3
ПОЛУЧИТЬ КОНСУЛЬТАЦИЮ
НАПИСАТЬ В WHATSAPP
СКАЧАТЬ КОМПЛЕКТАЦИЮ ПРОЕКТА
Проект 4
ПОЛУЧИТЬ КОНСУЛЬТАЦИЮ
НАПИСАТЬ В WHATSAPP
СКАЧАТЬ КОМПЛЕКТАЦИЮ ПРОЕКТА
Проект 5
ПОЛУЧИТЬ КОНСУЛЬТАЦИЮ
НАПИСАТЬ В WHATSAPP
СКАЧАТЬ КОМПЛЕКТАЦИЮ ПРОЕКТА
Проект 6
ПОЛУЧИТЬ КОНСУЛЬТАЦИЮ
НАПИСАТЬ В WHATSAPP
СКАЧАТЬ КОМПЛЕКТАЦИЮ ПРОЕКТА
Скачайте полный каталог готовых проектов от СтройЛидер53
Нажимая на кнопку, я соглашаюсь
на обработку данных
Получите каталог готовых проектов
ПОЛУЧИТЬ КАТАЛОГ ПРОЕКТОВ
*Мы собираем номера телефонов, чтобы ограничить количество переходов от конкурентов
Не нашли подходящее решение в каталоге?
При разработке проекта важно учитывать тип грунта, ландшафт и климат.
Подберем и адаптируем проект под ваши пожелания и особенности участка или разработаем индивидуально с нуля
Учтем ваши пожелания по количеству и расположению комнат и санузлов.
Если вы хотите установить камин или сделать погреб, также заложим это в проект.
Если этого не сделать,
проблемы могут начаться
уже на этапе строительства.
Получите бесплатную консультацию
архитектора, и он разработает проект
дома вашей мечты
Такая консультация обычно стоит 5000 руб., но для наших клиентов мы проводим её бесплатно
Нажимая на кнопку, я соглашаюсь
на обработку данных
Запишитесь на бесплатную
консультацию
архитектора
ПОЛУЧИТЬ КОНСУЛЬТАЦИЮ
За этим номером зафиксируем
бесплатную консультацию
Мы построили более 200 домов
Посмотрите примеры некоторых из них
Запишитесь на экскурсию по уже готовым домам или объектам в процессе строительства
Своими глазами увидите, как и в каких условиях возводится дом
Нажимая на кнопку, я соглашаюсь
на обработку данных
Запишитесь экскурсию в удобное для вас время
ЗАПИСАТЬСЯ НА ЭКСКУРСИЮ
(это бесплатно)
Ваш дом будет строить профессиональная бригада из тщательно отобранных сотрудников
Не приглашаем строителей попроектно, только свои сотрудники, которые работают точно по нашей технологии
Принимаем на работу только с опытом от 1 года и после проверки теоретических знаний
Регулярно отправляем на семинары и форумы для повышения квалификации
Ответьте на 8 вопросов ниже и узнайте предварительную смету под ваш бюджет и параметры
Если сомневаетесь, оставьте поле пустым
Введите номер телефона, чтобы мы могли сообщить вами стоимость дома по вашим параметрам
Сколько этажей будет в вашем доме?
Укажите желаемую площадь дома
Какой фундамент планируете?
Выберите тип кровли
В какой бюджет вы хотели бы уложиться при выполнении всех циклов работ по строительству вашего дома под ключ?
Когда хотите начать строить себе дом? (мы строим в любое время года)
Отвечаем на популярные вопросы
Если у вас есть желание закупить какой либо материал самостоятельно, мы будем не против только согласуем с вами его качество, чтобы это не повлияло на надежность дома.
Нажимая на кнопку, я соглашаюсь
на обработку данных
Назначьте встречу
в удобное для вас время
НАЗНАЧИТЬ ВСТРЕЧУ
Адрес:

Новгородская область, Шимский район, с. Подгощи ул. Школьная д.35

Телефон:
+7 (911) 600-00-51 – общий
ПЕРЕЗВОНИТЕ МНЕ
(с) 2022. Все права защищены